Mieszkanie z garażem Lubawa
Lubawa Pokaż na mapie ›
Ogłoszenie archiwalne Wygasło: Środa, 28 Maj, 2025 02:36
289 000 zł
2979 zł/m2
Szczegóły ogłoszenia
- Kategoria: Mieszkania / Sprzedaż
- Powierzchnia:97 m2
- Liczba pokoi:4 pokoje
- Zabudowa:Kamienica
- Tech. budowy:Cegła
- Piętro :1 piętro
- Liczba pięter:1 piętro
- Rynek:Wtórny
- Rok budowy:1910
- Sprzedaż:Pośrednik
- Inf. dodatkowe:Balkon
- Cena: 289 000 zł / 2979 zł/m2
Opis oferty
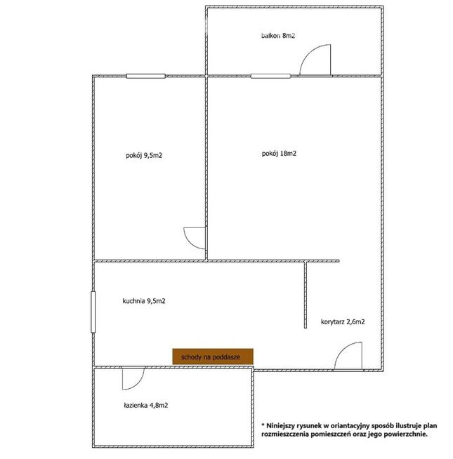
Nieruchomość mieszcząca się na pierwszym piętrze kamienicypołożonej na ulicy Kościelnej w Lubawie, tuż przy rynku.
Dwupoziomowe mieszkanie oferuje przestronność i komfort
porównywalny
z domem.
Parter to łazienka, sypialnia, salon z wyjściem na duży balkon,
który w letnie dni może być przedłużeniem salonu.
Osobna umeblowana kuchnia jest kolejną zaletą.
Dodatkowym atutem jest zaadaptowane poddasze, które mieści
przestronny korytarz oraz dwa pokoje, oferując dodatkowe 44 m²
powierzchni użytkowej (mierzonej po podłodze). Wykończone w
standardzie parteru, gotowe do stworzenia potrzebnej przestrzeni np.
sypialni, pokoju dla dzieci lub garderoby.
Brak czynszu za mieszkanie – nie ponosisz comiesięcznych, odgórnie
naliczanych opłat, sam decydujesz o swoich wydatkach i płacisz tylko
za to, co faktycznie zużyjesz.
Ogrzewanie mieszkania zapewnia piec na węgiel, który znajduje się w
piwnicy o powierzchni 8 m2, co daje niezależność i kontrolę nad
swoimi kosztami.
W cenie ofertowej zawarty jest również garaż jednostanowiskowy,
usytuowany na działce własnościowej o powierzchni 50 m²,
znajdującej się tuż przed budynkiem. Możliwość rozebrania
garażu i stworzenia idealnego ogródka do odpoczynku i grillowania
jest dodatkowym atutem nieruchomości.
Szczegóły oferty: Freedom Iława Kopernika - Arkadiusz Piotrowski,
tel. 451 - pokaż numer telefonu -
* Do ceny transakcyjnej należy doliczyć koszty okołotransakcyjne.
"Właścicielem ogłoszenia wraz z jego elementami jest Freedom
Nieruchomości Sp. z o.o. lub podmioty współpracujące. Wszelkie
prawa zastrzeżone. Kopiowanie, rozpowszechnianie oraz korzystanie z
niniejszych materiałów w jakikolwiek inny sposób wykraczający poza
dozwolony użytek określony przepisami ustawy z 4 lutego 1994 r. o
prawie autorskim i prawach pokrewnych (Dz. U. 1994, nr 24 poz. 83 z
późn. zm.) bez pisemnej zgody Freedom Nieruchomości Sp. z o.o. lub
podmiotów współpracujących jest zabronione i może stanowić
podstawę odpowiedzialności cywilnej oraz karnej.
Ponadto niniejsze materiały stanowią tajemnicę przedsiębiorstwa
Freedom Nieruchomości Sp. z o.o. lub podmiotów współpracujących w
rozumieniu ustawy z dnia 16 kwietnia 1993 r. o zwalczaniu nieuczciwej
konkurencji (Dz. U. z 2003 r., Nr 153, poz. 1503 z późn. zm.).
Niniejsze ogłoszenie nie stanowi oferty w rozumieniu Kodeksu
Cywilnego, lecz ma charakter informacyjny."
Sprawdź zainteresowanie tym ogłoszeniem
Wyświetlenia
Data dodania
Ostatnio widziany
Obserwujących
Wysłane zapytania
Odsłony telefonu
Powiadom o podobnych ogłoszeniach
Lokalizacja: Lubawa
Kategoria: Nieruchomości » Mieszkania » Sprzedaż
Cena: od 245500 zł do 332500 zł Powierzchnia : od 82 m2 do 112 m2
Chcę otrzymywać powiadomienia o nowych ofertach
To ogłoszenie jest archiwalne i może być nieaktualne.
Arkadiusz Piotrowski
Konto firmowe
Na Lento.pl od 02 sty 2024
Odpowiada szybko
Strona użytkownika
- Wypromuj ogłoszenie
- Zgłoś naruszenie
- Edytuj/usuń ogłoszenie
- Udostępnij ogłoszenie
- Dodaj na Facebook



























